Tiny rooms.
2-Zimmer-Appartements
in Freiburg
Der Wunsch nach Unabhängigkeit und Flexibilität der jüngeren Generation weckt nicht nur die Kreativität der Planer, sondern auch das Denken in anderen Dimensionen. Flächeneinsparung durch effiziente und vor allem flexible Raumnutzung steht bei diesem Projekt im Fokus.
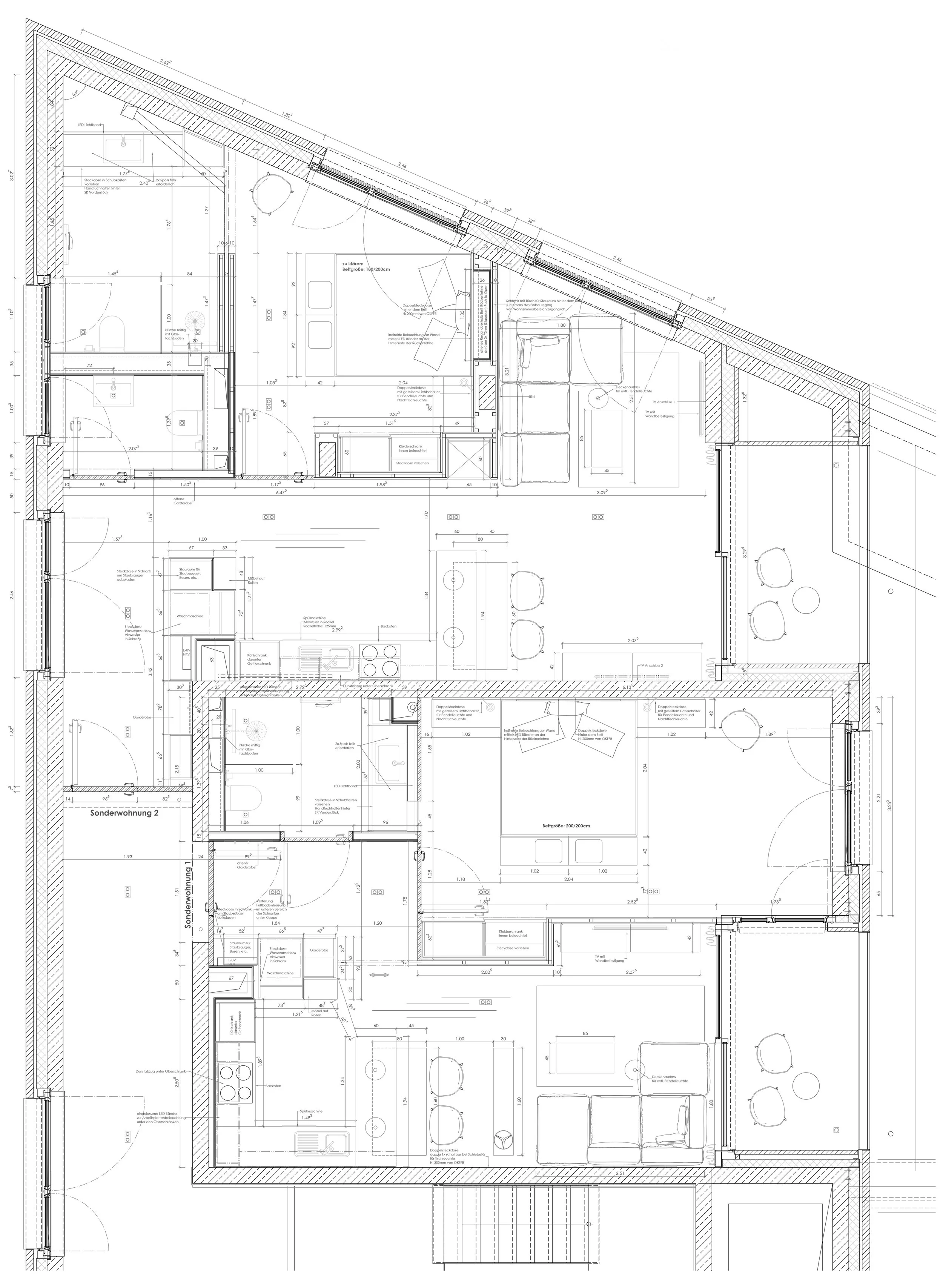
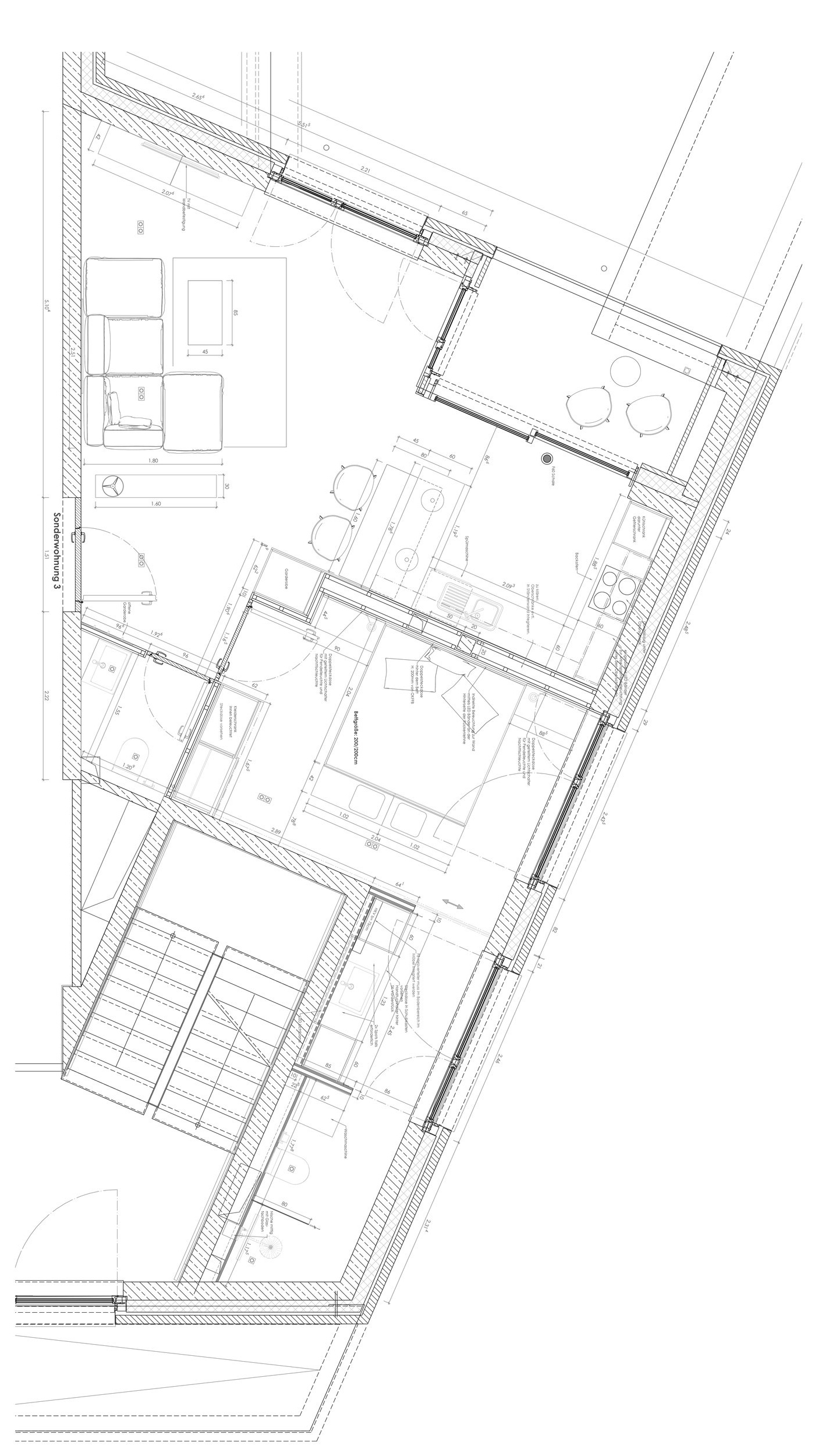
29 voll möblierte Mietwohnungen bieten auf kleinster Fläche alles, was sich der Nutzer wünscht und sogar noch mehr. Nicht nur die variable Nutzung von Ess-, Arbeits- und Wohnbereich, sondern auch das große Angebot an Stauraum in diesen Wohnungen machen diese zu perfekt funktionierenden Einheiten.
3 unterschiedliche Wohnungstypen bieten trotz der standardisierten Möblierung eine gelungene Wohlfühlatmosphäre, die durch die geschickt aufeinander abgestimmten Materialien, das hohe Ausstattungsniveau und die intensive Raumnutzung getragen wird.
Winzige Räume mit Wohlfühlcharakter!
Wohnung
Typ 01
